Restructuration d’une maison de ville familiale à Etrepagny en site occupé.
Etant donné le contrainte de réaliser les travaux en site occupé – le projet propose le changement de place de cuisine pour permets l’utilisation des pièces techniques existants pendant le mise en place des nouveaux équipements.
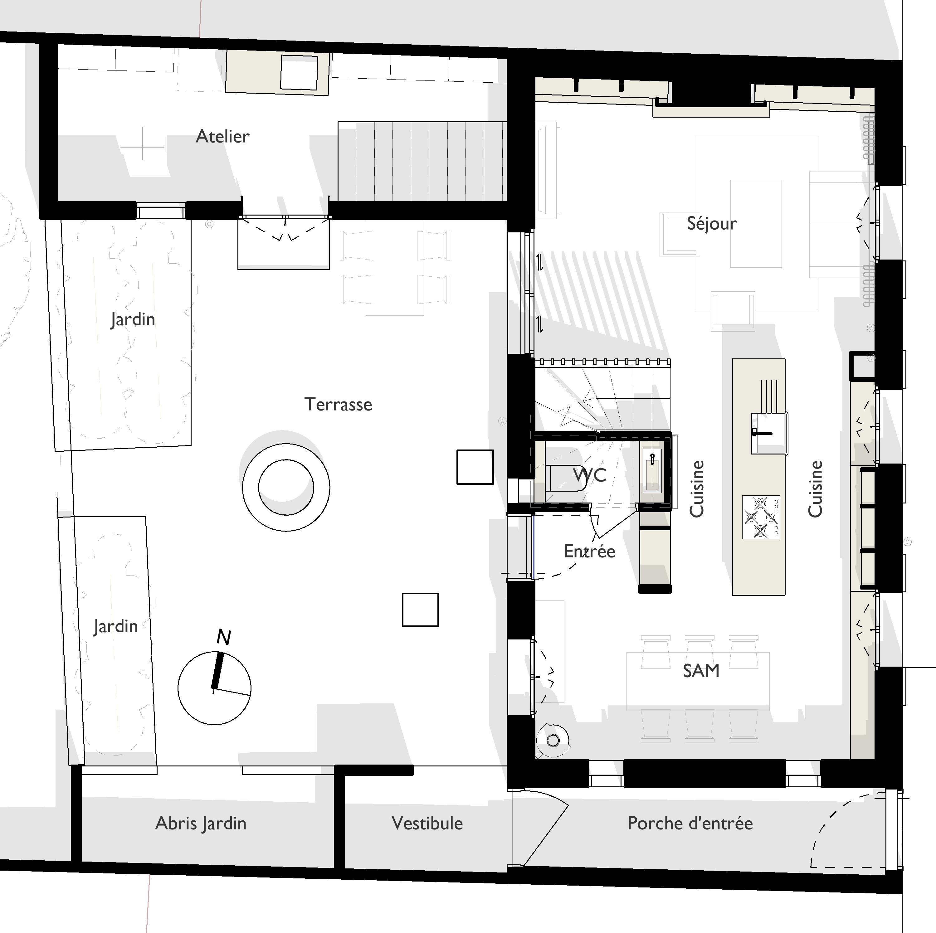
Réorganisation des espace vie au Rez-de-chaussée avec une cuisine traversante centrale avec une salle à manger d’un coté et séjour de l’autre.

Des ouvertures sur jardin des SAM et séjour sont agrandis et transformés en portes fenêtres. L’escalier est ouverte sur les espaces vie par un claustra tout hauteur. L’entrée et WC existants sont réorganisées pour l’intimité d’usage ainsi que le rangement des chausseurs de ville.






Actuellement un Salle de bain/douche avec WC est placé au centre au 1er étage. Nous proposons un hypothèse pour les étages restructurées pour faire des pièces d’eau privatifs pour chacun des chambres (Enfants + Parents) avec WC séparées à chaque étage sur les paliers.
Hypothèse 1 – Plans des niveaux restructurés :



Revision RDC – V4








V13 – Mise au point – Phase Chantier





