Transformation d’un entrepôt de chausseurs en Loft-Atelier
Une fabrique de chaussures transformée en lofts par un promoteur.
Un couple – elle, artiste peintre, lui, professeur et joueur d’échecs…
Garder l’esprit initial du loft, mais le refondre totalement pour l’adapter à la vie et aux passions de ses nouveaux occupants.
Des espaces mise en scène par des jeux de lumière, des couleurs, des textures et des matières.
Les volumes du loft sont nés d’une composition subtile de plan, vide, et masse qui offrent à travers leur architecture un sentiment de liberté et d’intimité.
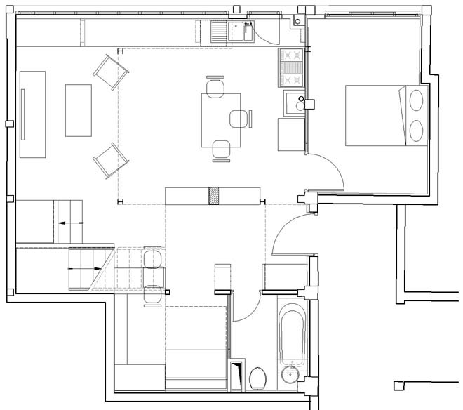
Plans – Coupes

Réalisation
Travaux
Couleur
Mobilier Spécifique – Création/réalisation Dominique Rivière
005-CAR
Loft-Atelier – 105m2 SHON – 98m2 Utile
Montreuil-sous-Bois ( 93)
Création d’un appartement avec mezzanine, salon/cuisine, chambres,
dressing, pièces d’eau, bureau et atelier avec meubles spécifiques intégrés
et installations sculpturales* par Dominique Rivière*.
Client : Privé
Equipe : Atelier Vong DC, Mandataire – Julie HOWARD Architecte
Construction : MMF, Ste.HERVOUET, ACTIFS, Baticlos Diffusion, Th.RANNOU, Ent.CLEMENT, AtreDesign, TEKNIDAL, LOCAPEINT, Ent.A.JEULAIN, SRTBAT
Commande directe – réalisation octobre 2003
*Photos VongDC







































