Restructuration des Espaces Entresol et sécurisation de piscine – Realisation 2023
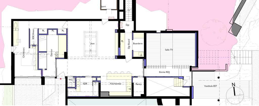
ESPACES ENTRESOL – Etat Projeté – Espaces VIE – V12

V12 – Details Interventions STRUCTURE




V12 – Extérieurs – Aménagements

V12 – Espaces Privés – RDJ OUEST
V8 – Presentation Generale
ENTRESOL – Etat Existant
ESPACES ENTRESOL – Etat Projeté – Espaces VIE – V8
















Chantier








ESPACES ENTRESOL – Etat Projeté – Espaces Chambres


Chantier





PISCINE – Etat Existant
PISCINE – Etat Projeté
Chantier





































































