
La concept architectural de ce projet est issue de la recherche d’une identité propre en créant un dialogue entre lieu et mode de vie, en recherchant une cohérence des échelles : individuelles, collectives et sociales.

Ici, l’architecture s’adapte à l’homme par ses formes, ses parcours, ses textures, et ses besoins et non le contraire.
Son rôle reste dans la solidité: une construction simple, solide, et robuste qui s’accentuera naturellement en se patinant avec le temps en prenant place sur le site et
en créant un dialogue entre les maisons, en s’affirmant comme la première pierre posée…
«Une image d’une nouvelle urbanité pour les projets à venir».

Leur mise en situation crée un dialogue entre les «maisons» ; précèdant et incitant celui des futurs habitants.
Un lieu rattaché au passé mais regardant l’avenir, un lieu avec les traces du passé, mais un quartier à naître, un tissage par les similarités et les contrastes de son environnement, comme nous, avec une âme…

Du caractère unique profitant des erreurs de nos passés révolus, en faisant un pas en avant vers quelque chose de mieux – qualité environnementale, qualité sociale, échelle humaine, densité plus urbaine….
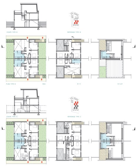
Implantés en quinconce, proches et très liées, les bâtis se répètent et se déclinent dans une progression d’échelle du Chemin des Meuniers vers le futur quartier universitaire.
Ils sont placés pour rendre chaque espace humain adapté, ajusté pour et à l’homme. La respiration, la résonance, l’entre deux et l’entrelacement s’allient pour donner une identité unique.
