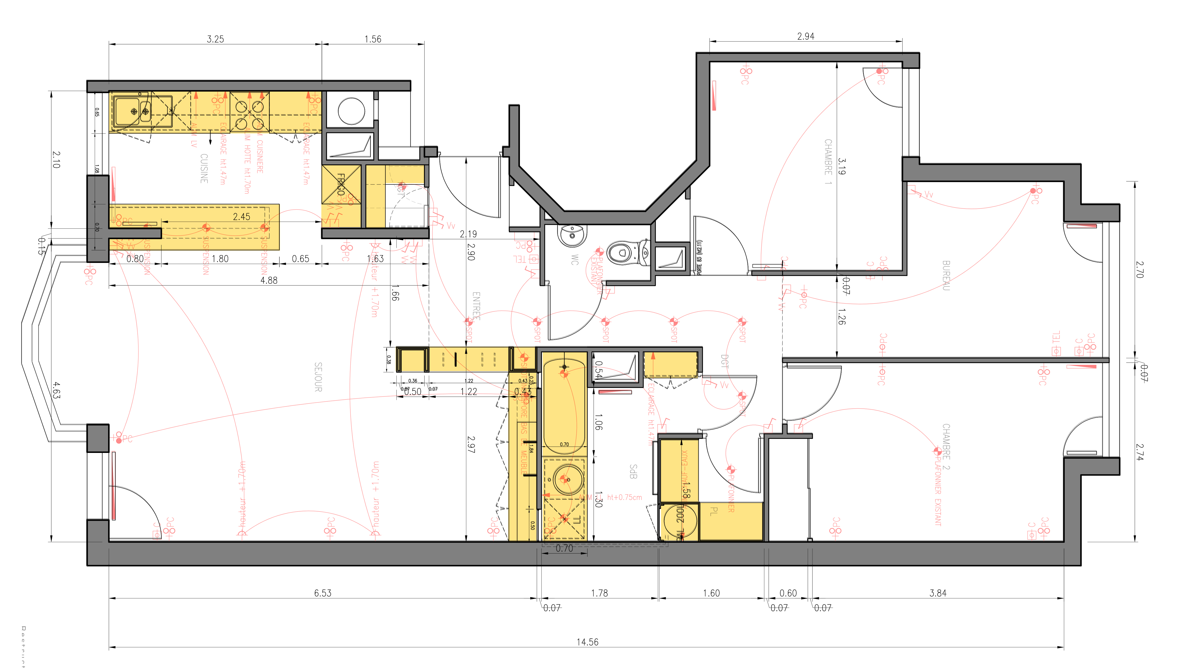
024-AOL – Appartement “PRUNE” 15 Sep 2004 · by Julie Howard · in . · Appartement PRUNE – Réalisation 2004 – 93m2 – PARIS 14 Client Privé Share this: Share on X (Opens in new window) X Share on Facebook (Opens in new window) Facebook Like Loading... Related